What is the Difference Between a Harbour Portal Crane and a Gantry Crane?
Harbour Portal Crane vs Gantry Crane

In modern industry and logistics, choosing the right lifting equipment is essential to improve operational efficiency and reduce operating costs. Harbour portal cranes and gantry cranes are two common lifting solutions, each of which has unique advantages and can meet the needs of different operating scenarios. Whether it is a busy port terminal or a sophisticated factory workshop, understanding the differences between these two types of cranes can make an informed choice and bring a significant competitive advantage to your business.
Comparison of basic information.
Harbour Portal Crane
- Classification
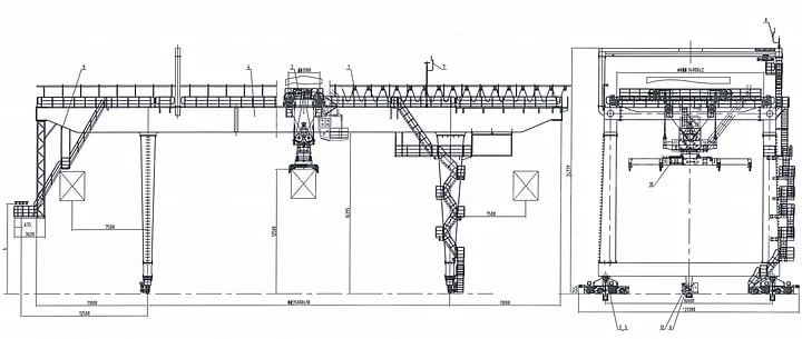
Four link portal harbour crane
- Working principle
A Harbour portal crane is a fully rotary boom crane installed on a gantry base that walks along a ground track. Railway vehicles or other ground vehicles can pass below.
With a rotatable boom.
It is widely used in the mechanical loading and unloading of cargo at ports and docks, the assembly of ships in shipyards, and the construction of dam projects on large-scale hydropower station sites.
The lifting weight of the harbour portal crane is generally 10–40t; the range is 8.5–73m; the working level is A4-A7.
That is intermediate or heavy work level.
Mostly suitable for frequent work occasions.
Operation method: often operated by the cab.
- Advantage
Can cover a wider working area.
The working area is distributed in a cylindrical shape, 360. Rotating and moving working range.
Suitable for specific projects or places, the versatility is not as extensive as the gantry crane.
The lifting height varies with the amplitude of the swivel arm.
Tonnage varies with the amplitude of the rotary arm.
Gantry Crane
- Classification
- Working principle
A gantry crane is usually a kind of rail-operated lifting machinery with a gantry steel frame structure. It is more widely used and has greater flexibility.
The bottom area of the door frame is open, which can accommodate larger objects, and the site has a high storage rate.
Not equipped with a rotary boom, usually with outriggers.
Mainly used for loading and unloading operations of outdoor cargo yards, material yards, and bulk cargo.
The lifting weight of gantry cranes is generally 3–800t; the span is 3–36m; the working level is A3-A5.
That is light or intermediate work level.
Suitable for occasional or intermittent work.
Operation mode: ground wired handle operation, ground wireless remote control operation and cab operation.
- Advantage
Many usage scenarios.
The working area is distributed in a rectangular shape, and the working range moves back and forth, up and down, and left and right.
Stable structure, good stability, a wide range of adaptability.
Strong versatility.
Many categories.
Application comparison
Harbour portal crane

It is mainly used in ports and open-air warehouses for loading and unloading with grab or hooks.
The lifting weight generally does not exceed 40 tons, which varies with the amplitude.
Work speed is high, so productivity is often an important indicator.

It is mainly used for ship platforms, floating docks and rigging sites, hull splicing, equipment rigging and other hoisting work, and hooks as spreaders.
The maximum lifting weight is 30 tons, and the lifting weight is reduced accordingly when the amplitude is large.

It is mainly used in hydropower stations for dam watering, equipment, lifting of prefabricated parts, etc, generally with hooks.
The lifting weight and working speed are generally between the first two types of cranes.
Gantry crane

Gantry cranes are often used to assist in the handling of heavy objects and improve production efficiency.
Because the gantry crane has a stable structure and can withstand a large weight, it plays an important role in industrial production.

Gantry cranes are used to load and unload cargo such as containers, improving cargo loading and unloading efficiency.
Shortened the cargo turnover time and contributed to the development of the logistics industry.

It is used for hoisting heavy objects such as building materials, machinery, and equipment.
Can complete the lifting task quickly and safely.

It is used for loading, unloading, stacking, and other warehouse goods operations.
It improves the efficiency of warehousing and reduces labor costs.
Summarize the difference through application
- Different uses:
Harbour portal cranes are mainly used in ports, open-air yards, shipbuilding and other fields, and are suitable for specific professional purposes, such as grab or hook loading and unloading, hull splicing, equipment installation, etc.
Gantry cranes are widely used in industrial production, construction sites, warehousing and logistics and other fields. They are suitable for general environments and have a wide range of uses. They are mainly used for handling heavy objects, hoisting construction materials and machinery and equipment, loading, unloading and stacking goods.
- Lifting weight and structure:
The lifting weight of the harbour portal crane is not fixed, and it will vary with the change of amplitude, with a maximum lifting weight of up to 80 tons.They are usually complex in structure, with multiple lifting speeds, and some are also equipped with micro-motion devices to meet the needs of precise installation.
Gantry cranes are known for their stable structure and can withstand large weights. They are usually used to improve production efficiency and working speed.
- Work speed and productivity:
The working speed of harbour portal cranes is higher or lower, depending on the purpose. Harbour portal cranes for ports emphasize high productivity, while gantry cranes for shipbuilding need to meet the requirements of large lifting heights and large-scale operations. The working speed is low, and the productivity is not high.
Gantry cranes emphasize improving work efficiency and reducing labor costs in the fields of industrial production and logistics, so they are commonly used in situations where fast and safe lifting tasks are required.
Compare and distinguish through Dafang Crane’s case

Working conditions
Suitable for subway/tunnel construction, especially for lifting operations at medium heights (about 6 meters) and limited spaces.
Suitable for small and medium-sized material handling needs of about 5 tons.
The lifting speed range of the electric hoist is 0.8–8m/min, which meets the lifting requirements of most medium loads.
The operating speed is 2–20 meters/min, which is suitable for completing hoisting operations within a short moving distance to ensure smooth and safe operation.
The design standard is based on JB/T5663–2008, which adapts to the operating needs of various working conditions.
Can maintain good performance in various climatic conditions.
Advantage
Simple structure, easy to install and operate.
Strong adaptability, suitable for a variety of indoor and outdoor venues.
Cost-effective, affordable, suitable for small and medium-sized enterprises.
Safe and reliable, equipped with safety measures such as buffer device, stroke limit protection and overload protection.
Energy saving and environmental protection, electric drive, low energy consumption, low noise, green and environmentally friendly.

Working conditions
The rail mounted container gantry crane is mainly used in port terminals, railway cargo yards and logistics centers, and is specially used for container loading, unloading and handling.
Its design is suitable for long-distance and long-span operations, and can efficiently handle the transshipment of containers.
The lifting weight is 45 tons, which can meet the handling needs of standard containers, including fully loaded 20-foot and 40-foot containers.
The lifting speed is 12 (full load) m/min, 20 (no load) m/min, and the operating speed of small cars and carts is 50m/min, which can complete the lifting and transshipment tasks of containers in a short time, and adapt to high-intensity and high-frequency loading and unloading operations.
Advantage
Efficient loading and unloading: rapid lifting and movement to improve the efficiency of container transportation.
Long-span operation: suitable for wide cargo yards and reduces the frequency of equipment movement.
Stable structure: double beam design to ensure the stability of heavy-duty and high-speed operations.
Safe and reliable: equipped with safety devices to ensure safe operation.
Strong adaptability: adapt to the operating needs of various weather and environmental conditions.

Working conditions:
Four link portal harbour cranes are mainly used in ports, docks, depots, and other occasions, and are suitable for loading and unloading heavy cargo.
Its structural design is suitable for handling bulk cargo, containers, and other heavy materials at seaside or inland ports.
The working radius of the crane ranges from 15 meters to 55 meters, covering a wide operating area, suitable for handling a variety of different sizes and weights of cargo.
The lifting height of the crane can reach 50 meters, which is suitable for hoisting operations on towering ships or elevated facilities.
Advantage:
A wide range of operations, which can effectively cover the cargo handling area of large ships.
Able to handle heavy cargo and large containers, and adapt to high-intensity operating requirements.
The four-link structure design provides greater operating flexibility and can maintain stable operating performance under different operating radii.
The harbour portal crane has a sturdy structure, which provides good wind resistance and overturning resistance to ensure the safety of operation under severe weather conditions.
Equipped with an anti-swing system, which is more stable during operation, reduces the shaking and tilting of the goods, and is suitable for high-precision operations.
Complex operations can usually be performed in a smaller work area.

Working conditions:
Single Boom Portal cranes are mainly used in ports, docks, depots and other occasions, especially suitable for loading and unloading heavy cargo and bulk cargo.
Its design is suitable for occasions where long boom extension is required, such as cargo loading and unloading of large ships.
The working radius of the crane ranges from 20 meters to 73 meters, which can cover a very wide operating area and is suitable for the loading and unloading needs of large ships.
The lifting height of the crane can reach 56 meters, which is suitable for hoisting operations on towering ships or elevated facilities.
Advantage:
Can cover a wider working area.
The single-boom design enables the crane to have good flexibility under different operating radii and can accurately lift the goods to the designated location.
It is more suitable for long-distance and large-scale operations, especially in the operation of relatively empty docks or large ships.
Suitable for large ports that require fast and efficient loading and unloading, and can complete the transshipment of a large number of goods in a short time.
The amplitude and lifting height of the single boom portal crane are greater than that of the four link portal harbour crane.
Comparison in the same environment
Both harbour portal cranes and gantry cranes can be used to move goods in ports, so what are their differences and advantages?

Harbour portal cranes are generally at the forefront of the port.
Transport goods from sea cargo ships to the ground.
Since the rotary boom of the harbour portal crane can perform pitch action to adjust the height of the boom, it can cope with:
1. The difference in hull height caused by high and low tides in the sea;
2. For cargo ships of different tonnages, the accumulation of cargo leads to the height difference of the hull.
In seaport terminals, gantry cranes are generally used in terminal container depots and do not work by the sea.
Gantry cranes are mainly used for: after the harbour portal cranes transport the goods from the sea cargo ship to the ground, they carry containers and stack them.

Usually, terminal handling is divided into two steps. Gantry cranes and harbour portal cranes need to cooperate with each other. The installation locations are different and each performs its own duties.
Including
Harbour portal cranes and gantry cranes have their own advantages in structure and application fields. With its towering structure and flexible boom design, harbour portal cranes have become the preferred solution for long-distance hoisting of heavy cargo in ports and terminals. The gantry crane, with its stable gantry design, demonstrates excellent and efficient material handling capabilities in factories and warehouses. Choosing the right crane can not only improve operational efficiency, but also significantly optimize operating costs. Whether it is the pursuit of excellent hoisting performance or the pursuit of improving overall logistics efficiency, these two cranes are powerful supporters of your business growth.
About the Creator
Dafang Crane
A manufacturing and trading combo for crane industry, with more than 17 years full experience and a professional sales team. main product: overhead crane, gantry crane, jib crane, hoist and crane spares, such as wheel, hook, pulley, etc.




Comments
There are no comments for this story
Be the first to respond and start the conversation.