The Role of As-Built Drawings in Renovation and Remodeling Projects
This article delves into the critical role of as-built drawings, exploring their benefits, different types, and the process of acquiring them.

Renovation and remodeling projects are vital for revitalizing existing structures, whether for residential, commercial, or industrial purposes. These projects aim to enhance functionality, aesthetics, and often sustainability, adapting buildings to meet modern standards and preferences.
Central to the success of such endeavors is accurate as-built drawings, which play a crucial role in every stage from planning to execution and beyond.
What are As-Built Drawings?
As-built drawings are detailed representations of a structure as it exists after completion. They differ from original architectural plans by reflecting any modifications, additions, or alterations made during construction or subsequent renovations.
These drawings document the precise dimensions, materials used, spatial configurations, and the location of key elements such as electrical wiring, plumbing, HVAC systems, and structural components.

As-built drawings act as a bridge between the past and the present, meticulously documenting the final, constructed state of a building. They capture crucial details like:
- Dimensions: Precise measurements of walls, floors, ceilings, windows, doors, and other permanent fixtures.
- Locations: Exact placement of electrical panels, plumbing fixtures, HVAC systems, and structural components.
- Specifications: Material details for walls, flooring, roofing, and other building elements.
- Deviations: Any modifications made during the original construction compared to the initial design plans.
Also Read: Difference Between Shop Drawings and As-built Drawings
Importance of As-built in Renovation and Remodeling Projects
In renovation and remodeling projects, as-built drawings serve as a foundational document that informs and guides every decision and action taken by architects, engineers, contractors, and other stakeholders. Here’s how they contribute to the success of such projects:
1. Accurate Assessment of Existing Conditions:
Before any renovation work begins, accurate as-built drawings provide a clear understanding of the current state of the building. This includes structural integrity, load-bearing capacities, existing utilities, and potential areas of concern such as hidden ductwork or outdated wiring.
2. Facilitating Design and Planning:
Architects and designers rely on as-built drawings to develop comprehensive renovation plans. These drawings help in integrating new design elements with existing structures seamlessly, ensuring that the proposed changes are feasible and comply with building codes and regulations.
3. Ensuring Compatibility and Integration:
Detailed as-built drawings aid in identifying potential clashes or conflicts between existing systems and proposed modifications. For instance, they help in ensuring that new plumbing lines do not interfere with existing electrical conduits or that structural changes do not compromise the building’s integrity.
4. Cost Estimation and Budgeting:
Accurate as-built drawings are crucial for preparing realistic cost estimates and budgets. They help in anticipating the extent of demolition, reconstruction, and material procurement required, minimizing unforeseen expenses and project delays.
5. Project Management and Coordination:
During the renovation process, contractors and project managers refer to as-built drawings to coordinate construction activities effectively. These drawings provide a reference point for scheduling tasks, managing subcontractors, and ensuring that work progresses according to plan.
6. Documentation and Compliance:
As-built drawings serve as essential documentation throughout the project lifecycle. They are valuable for regulatory compliance, obtaining permits, and facilitating inspections by building authorities. Moreover, they provide a historical record of the building’s evolution, which can be useful for future renovations or property assessments.
A Spectrum of As-Built Drawings
As-built drawings come in various flavors, each catering to specific needs within a renovation project. Here's a breakdown of some common types:
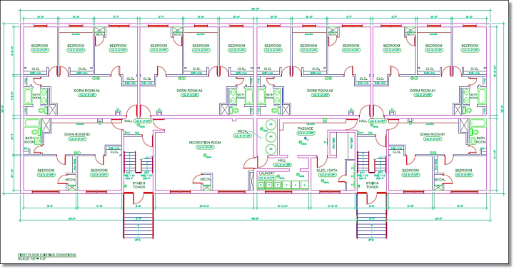
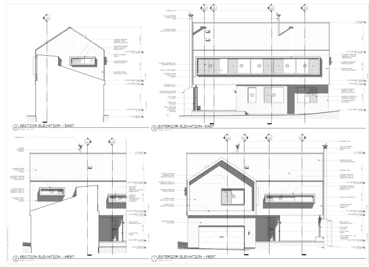
- Architectural Drawings: These comprehensive drawings depict the overall layout of the building, including walls, doors, windows, floors, ceilings, and stairways. They include dimensions, materials, and any deviations from the original design.

- Structural Drawings: Focusing on the building's skeletal framework, these drawings detail the location and specifications of beams, columns, slabs, and foundations. They are crucial for understanding the building's load-bearing capacity and planning structural modifications.

- Mechanical, Electrical, and Plumbing (MEP) Drawings: These specialized drawings map out the building's vital systems – HVAC systems, electrical wiring, plumbing fixtures, and drainage lines. MEP drawings pinpoint the location and size of these components, allowing for informed decisions about rerouting, upgrading, or expanding these systems during renovation.

- Fire Protection Drawings: These drawings illustrate the location and type of fire alarm systems, sprinklers, fire escapes, and other fire safety features. They are essential for ensuring the building adheres to fire safety codes during renovations.

The specific type of as-built drawings needed will vary depending on the renovation project's scope. A bathroom remodel might require only architectural and plumbing drawings, while a full-scale renovation might necessitate a complete set encompassing all the aforementioned types.
Obtaining As-Built Drawings: Charting the Course
There are several ways to acquire as-built drawings for your renovation project:
- Checking Existing Records: If the building is relatively new, there's a good chance the original architect or contractor might have retained a set of as-built drawings. Contacting them or the building's owner could yield these valuable documents.
- Engaging a Surveying Service: Professional surveyors can create as-built drawings by meticulously measuring the existing structure. This is particularly relevant for older buildings where original drawings might be unavailable.
- Leveraging 3D Laser Scanning Technology: Advanced technologies like 3D laser scanning can capture the building's existing geometry with incredible accuracy. This data can then be used to create highly detailed as-built drawings.
- BIM Integration: BIM software enables architects and engineers to create detailed 3D models that incorporate both existing and proposed elements, enhancing visualization and coordination.
The cost of obtaining as-built drawings will depend on the chosen method and the complexity of the building. However, the upfront investment in acquiring accurate drawings pales in comparison to the potential cost overruns and delays that can
About the Creator
Ryan Stein
I am a renowned author, speaker and educator on Building Information Modeling (BIM) technology in the Architecture, Engineering, and Construction (AEC) industry.



Comments
There are no comments for this story
Be the first to respond and start the conversation.