Benefits of Steel Fabrication Shop Drawings
Fabrication Shop Drawings Advantages for Structural Project

The structural engineers and architects review the steel fabrication shop drawings and cross-check them with the architectural plans. Steel detailers also monitor the changes in the designs and collate all revisions. The steel fabrication shop drawings can be challenged by missing information and require revisions. This article will discuss the benefits of steel fabrication shop drawings. The benefits of steel fabrication shop drawings are numerous and include safety, cost savings, and improved design.
Structural Steel Fabrication Drawing Services
Detailed Steel Fabrication Shop Drawing Services are essential for the smooth and efficient fabrication of any steel structure. These drawings enable the fabrication process to proceed as planned. In the past, shop drawings were created using pen and paper. They were simple and used simple algorithms for calculations. Eventually, calculators were introduced into the construction industry and these tools became an integral part of the fabrication process. However, these tools are not sufficient for the job and there are several other aspects that should be considered as well.
structural shop drawings services including steel shop drawings, sheet metal shop drawings & woodwork shop drawings, millwork shop drawings etc. Our structural team consists of highly qualified and experienced draftsmen and modelers. We provide various structural shop drawings for structural steel components, trusses, reinforced concrete, pre-cast concrete, structures, and millwork.
Bill of Materials
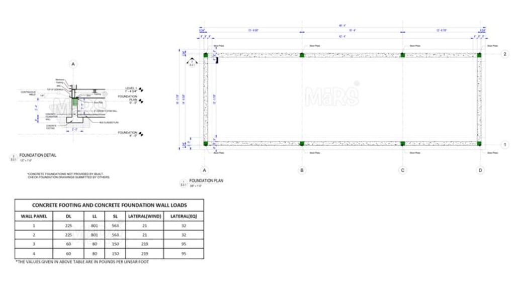
Steel fabrication shop drawings are a key part of the construction process. They help build any structure and save time, money, and energy by streamlining the entire process. Structural Steel Detailing is a process of cutting, welding, bolting, riveting, straightening, bending, and rolling the steel. The final product is then subjected to quality control tests. It is important to ensure that these documents accurately depict the design.
Prefabrication of steel components
Steel fabrication shop drawings are the most detailed diagrams of steel components used in the construction of buildings. Each building needs windows, doors, mechanical units, and air-conditioning units and light for a room. These is detailed diagrams provide the exact information needed to design, manufacture, and install these components. Using shop drawings helps engineers and architects relate any changes and analyze the effects of these modifications. This type of document also ensures the accuracy and completeness of the fabrication process.
Safety
A steel fabrication shop drawing is an invaluable tool for any steel fabricator. The design of a structure depends on many factors, including the amount of oxidation and moisture. When a surface is not flat and even, it can be dangerous to work on. The use of temporary working surfaces can help reduce the risks. In addition, safety benefits of steel fabrication shop drawings extend beyond reducing the potential for slips and falls.
Environmental impact
The environmental impact of steel fabrication is minimal compared to other construction methods. The average waste rate in fabrication shops is 7 percent and scrap is sold to recyclers to create new steel products. It is estimated that close to 2,000 steel fabrication companies operate in the United States. These companies generate an average of 0.06 tons of CO2 equivalent per ton of steel. However, the waste generated from steel fabrication may not be completely recyclable and it is not always possible to recycle the entire material.
Final Words
Regardless, of the project size or the work integrated into it, the team uses laser scanning technology as it has changed the entire way and concept of working on the project with a lot of many aspects. The Ultimate station that helps its clients provide laser scanning services for projects. Take a tour of the work and know more about it today.
About the Creator
MaRS BIM
MaRS BIM provides engineering design and project management for residential & commercial building types, Industries and offer world class building engineering services globally with an impressive range of skills and resources.


Comments (2)