LD Ordinary vs LDC Low-headroom Single Girder Overhead Cranes: Lessons from a Successful Pump Room Equipment Upgrade
LD Single Girder Overhead Cranes vs LDC Low-headroom Single Girder Overhead Cranes

In industrial equipment upgrades and technical transformation projects, selecting the right crane is crucial not only for efficiency but also for overall project cost and timeline. For many customers, choosing the appropriate lifting equipment involves balancing complex technical parameters and cost considerations, making the decision process both challenging and time-consuming. However, we firmly believe that every project has its own unique needs. In response to these needs, our solutions are not only efficient but also highly cost-effective.
Here is a real-world project case study comparing LD top running single girder overhead crane with LDC low-headroom single girder overhead crane. Through this project, we will demonstrate how to tailor a solution to specific requirements.
Project Background: Overcoming Challenges in Pump Room Equipment Upgrades
We were approached with a technical transformation project at a wastewater treatment plant. In the initial discussions with the client, it was revealed that their existing equipment upgrade faced a key challenge: the current LD 5t-S10.5m A3 electric single girder overhead crane could no longer meet the lifting requirements of the new equipment.
The new, larger pump system had a significantly increased size and weight compared to the original pump. The height of the pump increased by 300mm, and its weight rose by 220kg (from the original weight of 3,570kg). The existing crane’s lifting height was 3.46 meters, but the new equipment required at least 3.76 meters of lifting height to ensure proper installation. This made upgrading the crane unavoidable.
After multiple discussions with the client and a detailed analysis of the pump room’s space, equipment layout, and budget constraints, we proposed replacing the current LD single girder overhead crane with an LDC low-headroom single girder overhead crane. The LDC low-headroom single girder overhead crane has a lifting height of 3.94 meters, an improvement of 480mm over the existing crane, fully meeting the installation requirements. Moreover, since the new pump’s weight increase was modest, there was no need to replace the existing workshop’s crane beam system, significantly reducing modification costs for the client.

LD Single Girder Crane vs. LDC Low-Headroom Single Girder Crane
LD single girder overhead crane and LDC low-headroom single girder overhead crane are commonly used in the industrial sector, each with unique advantages. How do you choose the right one for your project? Let's compare them across several key aspects:
1. Structural Features
LD Single Girder Overhead Crane:
The LD single girder overhead crane primarily consists of the main girder, end beams, electric hoist, trolley mechanism, and electrical equipment.

- Main Girder: Features an I-beam box-type design. The flange of the I-beam has a certain slope, which matches traditional hoist trolley wheels.
- End Beams: Equipped with motors, reducers, wheel sets, and rubber buffers.
- Electrical Equipment: Operates on three-phase AC with a frequency of 50Hz or 60Hz and voltage between 220V and 660V. It uses either a safety slide wire or cable trolleys for power supply, with a built-in electrical protection system.
- Electric Hoist: Typically paired with CD1 or MD1 electric hoists.
LDC Low-Headroom Single Girder Overhead Crane:
The LDC low-headroom single girder overhead crane includes the main girder, end beams, low-headroom electric hoist, trolley mechanism, and electrical equipment.

- Main Girder: A box-type structure welded from steel plates. The lower flange of the girder serves as the hoist trolley track. Since the flange is flat, the trolley wheels are designed with cylindrical flat surfaces.
- End Beams: Similar to LD single girder overhead crane, with motors, reducers, wheel sets, and rubber buffers.
- Electrical Equipment: Features the same power and protection systems as the LD single girder overhead crane.
- Electric Hoist: Low-headroom type electric hoist.
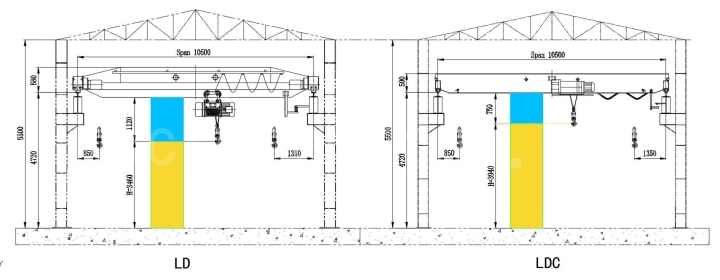
2. Lifting Height and Clearance Design
- LD single girder overhead crane: Best suited for applications in workshops with standard ceiling heights. The lifting mechanism is located beneath the main girder, limiting the hook clearance height. If the workshop has sufficient height, the LD single girder overhead crane is an economical and efficient choice.
- LDC low-headroom single girder overhead crane: Designed specifically for spaces with limited headroom. Its low-headroom design places the lifting mechanism above the main girder, maximizing lifting height. This makes the LDC low-headroom single girder overhead crane ideal for confined workshops, technical retrofits, or old factory upgrades where clearance is a concern.

Case Review: In the wastewater treatment plant project, the LDC low-headroom single girder overhead crane was the best choice due to its ability to meet the pump room’s height requirements. It not only solved the lifting height issue but also saved the client additional costs associated with modifying the workshop structure.
3. Application Scenarios
- LD single girder overhead crane: Commonly used in workshops with ample height and low lifting height requirements, such as general mechanical manufacturing, warehouses, and assembly lines.
- LDC low-headroom single girder overhead crane: More suitable for limited-space projects or situations with specific lifting height requirements, such as technical retrofits, old factory upgrades, or low-ceiling workshops.
4. Installation and Maintenance Costs
- LD single girder overhead crane: Simple to install and cost-effective, making it ideal for standard applications. If there are no stringent requirements for lifting height or clearance, the LD single girder overhead crane offers excellent value.
- LDC low-headroom single girder overhead crane: While slightly more expensive to install, it excels in utilizing limited clearance space. This avoids the need for extensive structural modifications, ultimately saving significant costs over time.
Customer Feedback: In our experience, customers may initially hesitate about the cost of the LDC low-headroom single girder overhead crane. However, after understanding its clearance advantages and long-term maintenance convenience, many report that its total cost of ownership is far lower than anticipated.
5. Comparative Parameters
The comparison of various parameters between the LD single-girder overhead crane and the LDC single-girder overhead crane under the same factory clearance dimensions is as follows:


Through multiple discussions with the client, we not only focused on their equipment needs but also considered the workshop’s structural characteristics, budget constraints, and future usage scenarios. We recommended the LDC low-headroom single girder overhead crane, which not only resolved their lifting height issue but also avoided unnecessary secondary construction, significantly reducing total project costs.
Our Recommendations for Selecting the Right Crane
- If your project has ample space and minimal lifting height requirements, the LD single girder overhead crane remains the most cost-effective choice.
- For projects with space constraints or high lifting height demands, the LDC low-headroom single girder overhead crane is undoubtedly the optimal solution. It offers efficient lifting capabilities and maximizes space utilization without impacting the workshop structure.
Conclusion: Tailored Solutions for Every Project
Whether it's the LD single girder overhead crane or the LDC low-headroom single girder overhead crane, our team always puts the client's needs at the core. Every project is seen as a unique challenge, and we ensure every detail meets customer expectations through comprehensive needs analysis and customized solutions.
We believe excellent service goes beyond providing a product. It's about overcoming challenges and achieving goals with tailored solutions. If your project is facing similar difficulties, feel free to contact us—we'll provide you with the most suitable lifting solution.
Article link: https://www.kscranegroup.com/posts/ld-ordinary-vs-ldc-low-headroom-single-girder-overhead-crane/


Comments
There are no comments for this story
Be the first to respond and start the conversation.